 
                                
                                
                                
                                
                                
                                
                                
                                
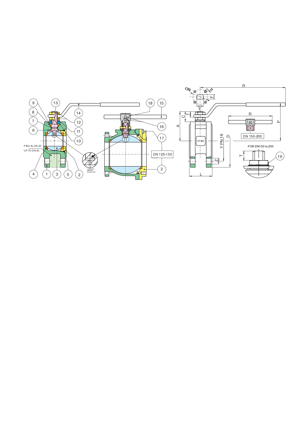
                                                            | Posizione | Nome parte | Materiale | N.° pezzi | 
|---|---|---|---|
| 1 | CORPO | A351-CF8M/A479-TP316 | 1 | 
| 2 | GHIERA | A351-CF8M/A479-TP316 | 1 | 
| 3 | SFERA | A351-CF8M/A479-TP316 | 1 | 
| 4 | GUARNIZIONE SFERA | PTFE CARBOGRAFITE - CARBON FILLED PTFE | 2 | 
| 5 | O-RING | FKM (Viton) | 1 | 
| 6 | GUARNIZIONE ANTIATTRITO | PTFE CARBOGRAFITE - CARBON FILLED PTFE | 1 | 
| 7 | O-RING | FKM (Viton) | 1 | 
| 8 | GUARNIZIONE ASTA | PTFE CARBOGRAFITE - CARBON FILLED PTFE | 1 | 
| 9 | BUSSOLA | A37+Z/P | 1 | 
| 10 | MEZZOGIRO | AISI 430 (DN15-DN50) A37+Z-P (DN65-DN200) | 2-1 | 
| 11 | MOLLA A TAZZA | 51CrV4+Z/P | 2 | 
| 12 | DADO | 6S+Z/P | 2-1 | 
| 13 | ASTA | A479-TP316 | 1 | 
| 14 | LEVA | A37+Z/P | 1 | 
| 15 | LEVA DN150 | S275J2H | 1 | 
| 16 | VITE DN150 | 8.8+Z/P | 2 | 
| 17 | VITE DN150 | 8.8+Z/P | 8 | 
| 18 | CORPO LEVA DN150 | EN GJL 250 | 1 | 
| 19 | RONDELLA ANTISVITAMENTO DN150 | AISI 316 | 1 | 
| MISURA | DN | CODICE | D | Y | Z | L | R | P | A | C | T | E | F | ØN | B | Kv | PN | Kg | 
|---|---|---|---|---|---|---|---|---|---|---|---|---|---|---|---|---|---|---|
| 1/2" | 15 | 72018404 | 90 | 65 | 4xM12 | 35 | 131 | 65 | 47 | 15,5 | 9 | 10 | 7 | 32 | 4xM5 | 19,2 | 16 | 1,40 | 
| 3/4" | 20 | 72018405 | 100 | 75 | 4xM12 | 40 | 131 | 69 | 51,5 | 15,5 | 9 | 10 | 7 | 32 | 4xM5 | 35 | 16 | 1,90 | 
| 1" | 25 | 72018406 | 115 | 85 | 4xM12 | 46 | 174 | 80 | 61 | 17 | 11 | 12 | 8 | 42 | 4xM5 | 64,5 | 16 | 2,20 | 
| 1"1/4 | 32 | 72018407 | 140 | 100 | 4xM16 | 54 | 174 | 84 | 64,5 | 15 | 11 | 12 | 8 | 42 | 4xM5 | 103,8 | 16 | 3,30 | 
| 1"1/2 | 40 | 72018408 | 150 | 110 | 4xM16 | 63,5 | 250 | 102 | 78 | 24,5 | 13 | 16 | 10 | 50 | 4xM6 | 174 | 16 | 4,20 | 
| 2" | 50 | 72018410 | 165 | 125 | 4xM16 | 82 | 250 | 111 | 87 | 25 | 13 | 16 | 10 | 50 | 4xM6 | 301,3 | 16 | 6,10 | 
| 2"1/2 | 65 | 72018412 | 185 | 145 | 4xM16 | 103 | 321 | 128 | 104,5 | 25 | 18 | 20 | 14 | 70 | 4xM8 | 545,7 | 16 | 10,00 | 
| 3" | 80 | 72018414 | 200 | 160 | 8xM16 | 122 | 321 | 138 | 115 | 28,5 | 18 | 20 | 14 | 70 | 4xM8 | 872,5 | 16 | 13,50 | 
| 4" | 100 | 72018418 | 220 | 180 | 8xM16 | 152 | 381 | 156 | 137 | 34,5 | 22 | 24 | 18 | 102 | 4xM10 | 1363,3 | 16 | 20,90 | 
| 5" | 125 | 72018419 | 250 | 210 | 8xM16 | 196 | 381 | 178 | 159 | 34 | 22 | 24 | 18 | 102 | 4xM10 | 2360,3 | 16 | 40,50 | 
| 6" | 150 | 72018420 | 285 | 240 | 8xM20 | 232 | 700 | 266 | 201,5 | 51,5 | 30 | 42 | 30 | 125 | 4xM12 | 3671,1 | 16 | 64,1 | 
 
                         
                         
                         
                         
                         
                
                
            